45 Miller Street, West Melbourne
$765pw
Last Listed: 18/11/25
Recommended Properties
Striking Single Front
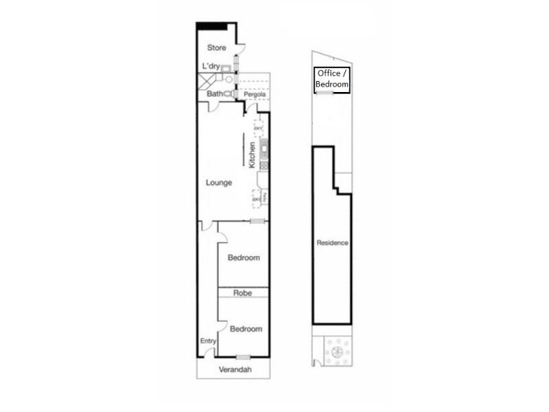
(This property is furnished) Ideally located in a quiet, wide street is this graceful Victorian brick workers cottage. Enjoy the inner-city lifestyle at your door stop, only moments from Errol Street shops and cafes, and all forms of public transport, CBD, Docklands and the Victoria Market. Updated for modern living, features include; • Open plan living & dining • Hard wood floors • Modern kitchen with subway splashback • Induction cooktop • Stainless steel appliances • Dishwasher • 2 internal bedrooms • 3rd bedroom or ultimate work from home space / studio (with power) • Neat bathroom • Low maintenance outdoor space with deck Arranging an inspection is easy! To book a time to inspect, simply click on book inspection time to book instantly using our online system. By registering you will be instantly informed of any updates, changes or cancellations to the inspection times. Please note the images advertised and are used for display purposes only. Prospective renters are advised to inspect the property and make their own enquiry. Property Code: 1186