Recommended Properties
Spacious 1Bedroom with high end finished and amazing location
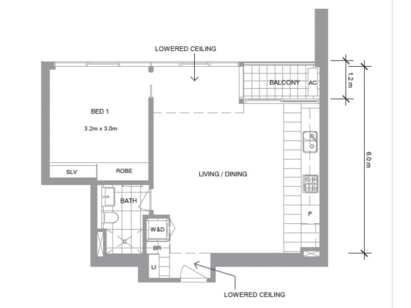
Experience the best that Melbourne has to offer with this 1 bedroom located in the highly anticipated "Melbourne Grand Building". This exquisite apartment offers a spacious 1 bedroom floorplan with high end finishes and an amazing location, right in the most sought after part of Melbournes CBD with everything at your fingertips. This apartment also features modern appliances throughout and access to high end facilities which include: Theatre, Pool, Sauna, Yoga Studio and Expansive Dining area with fireplace just to name a few. 5-star complex facilities offer relaxation and entertainment including: - Exclusive high-end resident facilities including theatre, heated indoor pool, sauna, gym and yoga studio - Expansive dining area with fireplace - Separate coffee lounge and banquet room - Rooftop BBQ terrace - Grand entry foyer with friendly 24-hour concierge & on-site security - Keyless building access, video intercom & multiple high-speed elevators - NBN internet ready Dont miss out on inspecting this apartment to see why this is truly a class above the rest! *Please note this building may have an embedded network for one or more utility supplies*