Recommended Properties
Luxury Family Living in the Prestigious Landcox Park Precinct
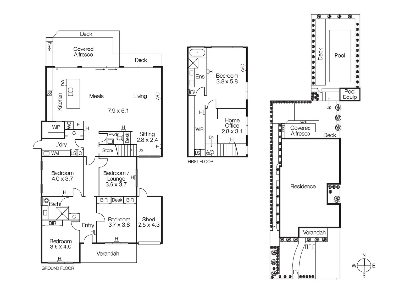
PLEASE NOTE THAT THIS PROPERTY IS UNFURNISHED Behind the charming clinker brick façade, this stunning north-facing residence perfectly balances period elegance with contemporary design. Designed for families who value space, comfort and lifestyle, the home features seamless indoor-outdoor living and resort-style amenities. Positioned within the exclusive Landcox Park precinct and the highly sought Gardenvale Primary School zone, you’ll enjoy close proximity to Martin Street and Bay Street shops, cafes, trains, trams, and family-friendly parklands. Key Features: · Four spacious bedrooms plus flexible living space (or optional fifth bedroom) · Two modern bathrooms with heated flooring in the master ensuite, plus a powder room · Master retreat with expansive walk-in robe, luxe ensuite, and a private home office with Sonos integration and data points · Open-plan living and dining area tailored for entertaining · Designer kitchen with concealed walk-in pantry, induction cooking, and Caesarstone benchtops · Premium finishes including European Oak floorboards, automated blinds, hydronic heating and double glazing throughout · Large 10 x 4m heated resort-style swimming pool · Outdoor alfresco entertaining with built-in Ziegler & Brown BBQ, heat strips, and Sonos speaker system · Landscaped gardens with irrigation and lighting systems · Family-friendly extras: laundry chute, drying cupboard, security camera and alarm system This is a home designed for families who want it all—location, lifestyle, and luxury. Welcome home.