Recommended Properties
Unbeatable Views
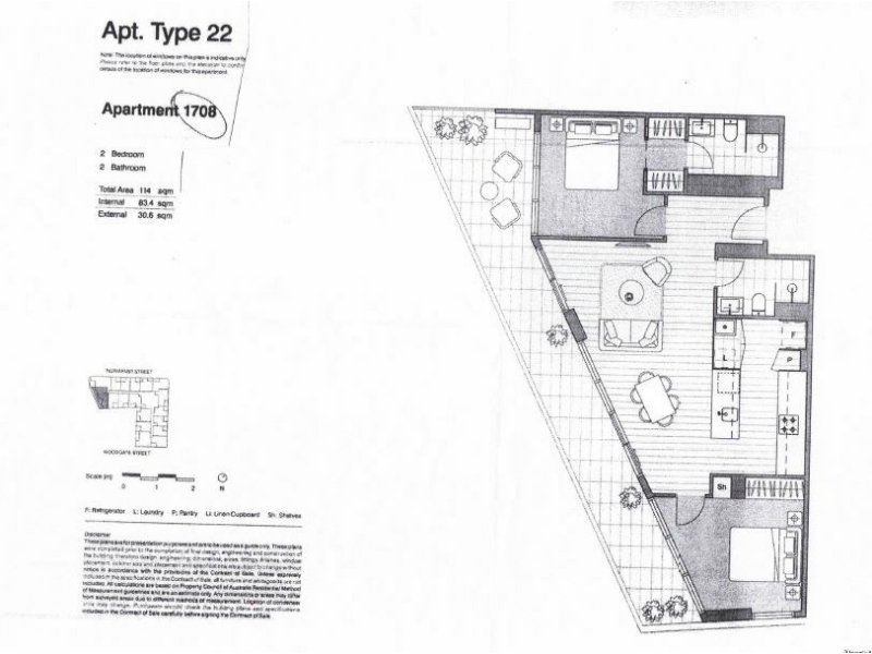
Welcome to contemporary inner city living at its finest. This stunning 2 bedroom, 2 bathroom apartment offers a perfect blend of style, comfort and amenity — right in the heart of South Melbourne at the sought after 259 Normanby Road. Key Features Include: • Living dining flooded with natural light • Sleek designer kitchen with stone benchtops, European appliances, ample storage • Master bedroom with ensuite; second bedroom with built in robes. • Private balcony with incredible bay views • Double-glazed windows and quality finishes throughout • European Laundry • Generous storage, built in wardrobes, utility cupboard • Reverse cycle heating / cooling to living area and main bedroom • Secure building entry, video intercom, elevator access Hotel Style Amenities: • Cinema • 24/7 Building Concierge Services • Infinity Running Track • Gym • Heated Outdoor Pool • Sauna and Steam Room • Private Dining Garden Pavilions • Zen Garden, and more Additional Services: • App for communication with residents and management • Extensive security access and CCTV coverage • Electric vehicle charging stations • Pet-friendly building with dog wash Sustainability: • 5-star green star rating • Efficient LED light fittings and water features • Sustainably sourced materials • Recycled rainwater for garden irrigation Arranging an inspection is easy! To book a time to inspect, simply click on book inspection time to book instantly using our online system. By registering you will be instantly informed of any updates, changes or cancellations to the inspection times. Please note the images advertised and are used for display purposes only. Prospective renters are advised to inspect the property and make their own enquiry.. Property Code: 1165